太平金融大厦 豪华装修 5A甲级写字楼 深圳证券交易所【深交所】广深港高铁【福田-香港西九龙】福田站 出租
大厦名称:太平金融大厦
物业性质:写字楼
物业级别:5A甲级写字楼
所属商圈:福田中心区
管理费:30元/平米/月【包空调】
出租面积:1222.07㎡
出租租金:面议
出租格局:精装修、10个房间、1个厅
出租朝向:东北南向、莲花山山景、公园城景、市民中心等城市景观一览无余
租售状态:出租【只租不售】
租赁电话:400 7165 112
物业管理:太平置业【深圳】有限公司
项目位置:广东省深圳市福田区益田路6001号
太平金融大厦推存优势
优势一:太平金融大厦、是福田中心区的核心、是深圳规划中-具发展潜力的区域、也是一集金融,商贸,信息、文化、会展及行政一体的城市商务中心和行政文化中心
优势二:太平金融大厦、位于深圳城市中轴线、深南大道与福中路之间、紧邻市民中心、国际超写字楼、众多性商务办公配置
优势三:周边五酒店林立、自有金融服务配套与下沉式商业广场、都市繁华尽纳尽享、毗邻市政府、深圳证券交易运营中心、荣超商务中心、新世界商务中心等、高端写字楼及五酒店聚焦、商务氛围浓
太平金融大厦租赁中心 太平金融大厦简介
大厦名称:太平金融大厦
物业性质:写字楼
物业级别:5A甲级写字楼
所属商圈:中心区CBD
管理费:30元/平米/月【包空调】
租赁状态:出租
标准层建筑面:2095-2248平米【面积任选】
太平金融大厦租赁中心
太平金融大厦租赁中心电话:400 7165 112
租赁面积:215平米、311平米、473平米、598平米、652平米、885平米、122平米、整层面积:2100平米、面积任组合
交楼标准:豪华装修、精装修、空房、毛坯、任选
另有:联合办公:共享空间 联合办公室 出租
实际成交价格按客户的实际需求而定:对大公司会足够优惠
开 发商:太平置业【深圳】有限公司
项目位置:广东省深圳市福田区益田路6001号
太平金融大厦项目简介
太平金融大厦:位于深圳城市中轴线、深南大道与福中路之间、紧邻市民中心、228米国际超甲级写字楼、总建筑面积131580.96平、地块(32-1-1-4)、鹏程二路以东、福中三路以南、益田路以西、该大楼的功能是用于办公和商业、众多独创性商务办公配置、周边五星级酒店林立、自有金融服务配套与下沉式商业广场、都市繁华尽纳尽享
太平金融大厦:项目宗地号:B203-0022,占地面积8056.02平方米,建筑占地面积3623平方米,总建筑面积约13万平方米、计容积率建筑面积为100300平方米、容积率小于12.45、覆盖率≤60%、设计高度为228米、结构形式为劲性钢结构、地下4层、地上48层、其中1-5层为裙房、用作商业、6层以上为办公区
电 梯:24台
设计单位:日建设计公司、深圳设计总院
设备装修:结构形式为劲性钢结构
外墙以玻璃幕墙为主、适当地铺以具装饰性及功能性的石材、裙房采用全石材、玻璃幕墙为平面或凸面设计、不形成凹弧面、不形成聚集点、用低反射的新型材料、选用柔和中性的色彩、并在设计时考虑反射角度、以减少对周边住户与办公楼以及周边道路的光污染
入住企业:建成后将成为太平保险集团研发中心、共享中心、暨太平财产保险总公司太平人寿、太平养老等国内机构办公场所、同时深圳保监会将进驻
太平金融大厦、技术参数
本项目于2010年6月21日奠基、工期4年,2014年7月1日竣工
宗地号:B203-0022
计容积率建筑面积:100300平方米
容积率:<12.45< span="">
覆盖率:≤60%
地块成交价:5.9亿元
投资商:中国太平保险集团公司、太平财产保险有限公司、民安保险(中国)有限公司、太平人寿保险有限公司深圳分公司
开发商:太平置业(深圳)有限公司
建筑设计:日建设计公司、深圳设计总院
占地面积:8056.02平
总建筑面积:131580.96平
办公楼总高层:地上49层、地下4层
标准层最大进深:16.4m
标准楼层净高:3.0m
架空地板高度:250px全钢网络架空活动地板
空中大堂:18F 、33F
楼板荷载:标准承重3.0kn/平、设备区承重8.0kn/平
空调系统:国江森VAV变风量中央空调系统
主楼电梯:24部(4部穿梭电梯、14部客梯(含观光电梯、9部)、2部消防梯、商业区电梯4部)
幕墙、三层夹胶中空、LOW-E单元式玻璃+石材/仿石铝板
尽享中心区精华配套资源:得天独厚的便捷、享受市民中心、少年宫、音乐厅、图书馆、水晶岛、深圳书城、莲花山公园等市政公共配套、周边商场、各大银行、餐饮、五大、Shopping mall、衣、食、住、行、运动、娱乐、休闲一体化
多线轨交上盖、交通中枢联动粤港
福田站:深圳地铁2号线【蛇口线】、深圳地铁3号线【深圳地铁龙岗线】、深圳地铁8号线【盐田线】、深圳地铁11号线【深圳地铁机场快线】、广深港高铁【福田-香港西九龙】的换乘站:并与广深港地下轨道交通枢纽交汇、快速融入城市脉博、依托广深港客运专线、16分钟直达香港西九龙、30分钟畅达广州、联动粤港
太平金融大厦周边配套: 金融:招商银行市民中心支行、招商银行新世界支行、民行银行莲花支行、平安银行福田支行、深发银行江苏大厦支行
餐饮:永和大王福中店、星巴克五洲星苑店
教育:华强职业技术学校、黄埔学校中学部、黄埔学校小学部、德宝幼儿园
医疗:儿童医院、海王星辰健康药房
太平金融大厦、交通状况
黄埔雅苑:10、123、234、232等路
市民中心西:64等路
广电大厦①:320、观光线等路
广电大厦②:123、113、234、32、232等路
广电大厦:N4、101、K204、223、325、326、301A、329、310-315、311、N5、高峰1号专、晚峰1号专等路
太平金融大厦 豪华装修 5A甲级写字楼
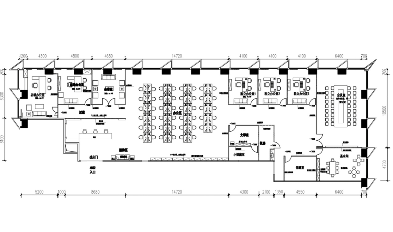
深圳证券交易所【深交所】广深港高铁【福田-香港西九龙】福田站 出租 户型图片

太平金融大厦 豪华装修 景观图片 5A甲级写字楼 深圳证券交易所【深交所】广深港高铁【福田-香港西九龙】福田站 出租

太平金融大厦 豪华装修 景观图片 5A甲级写字楼 深圳证券交易所【深交所】广深港高铁【福田-香港西九龙】福田站 出租

太平金融大厦 豪华装修图片 5A甲级写字楼 深圳证券交易所【深交所】广深港高铁【福田-香港西九龙】福田站 出租

太平金融大厦 豪华装修图片 5A甲级写字楼 深圳证券交易所【深交所】广深港高铁【福田-香港西九龙】福田站 出租

太平金融大厦 豪华装修图片 5A甲级写字楼 深圳证券交易所【深交所】广深港高铁【福田-香港西九龙】福田站 出租

太平金融大厦 豪华装修图片 5A甲级写字楼 深圳证券交易所【深交所】广深港高铁【福田-香港西九龙】福田站 出租

太平金融大厦 豪华装修图片 5A甲级写字楼 深圳证券交易所【深交所】广深港高铁【福田-香港西九龙】福田站 出租

太平金融大厦 豪华装修图片 5A甲级写字楼 深圳证券交易所【深交所】广深港高铁【福田-香港西九龙】福田站 出租

太平金融大厦 豪华装修图片 5A甲级写字楼 深圳证券交易所【深交所】广深港高铁【福田-香港西九龙】福田站 出租

太平金融大厦 豪华装修图片 5A甲级写字楼 深圳证券交易所【深交所】广深港高铁【福田-香港西九龙】福田站 出租

太平金融大厦 豪华装修图片 5A甲级写字楼 深圳证券交易所【深交所】广深港高铁【福田-香港西九龙】福田站 出租

太平金融大厦 豪华装修图片 5A甲级写字楼 深圳证券交易所【深交所】广深港高铁【福田-香港西九龙】福田站 出租

太平金融大厦 豪华装修图片 5A甲级写字楼 深圳证券交易所【深交所】广深港高铁【福田-香港西九龙】福田站 出租

太平金融大厦 豪华装修图片 5A甲级写字楼 深圳证券交易所【深交所】广深港高铁【福田-香港西九龙】福田站 出租

太平金融大厦 豪华装修图片 5A甲级写字楼 深圳证券交易所【深交所】广深港高铁【福田-香港西九龙】福田站 出租

太平金融大厦 豪华装修图片 5A甲级写字楼 深圳证券交易所【深交所】广深港高铁【福田-香港西九龙】福田站 出租

太平金融大厦 豪华装修图片 5A甲级写字楼 深圳证券交易所【深交所】广深港高铁【福田-香港西九龙】福田站 出租

太平金融大厦 公共区域图片 5A甲级写字楼 深圳证券交易所【深交所】广深港高铁【福田-香港西九龙】福田站

太平金融大厦 电梯厅图片 5A甲级写字楼 深圳证券交易所【深交所】广深港高铁【福田-香港西九龙】福田站

太平金融大厦 大堂图片 5A甲级写字楼 深圳证券交易所【深交所】广深港高铁【福田-香港西九龙】福田站

太平金融大厦 周边环境图片 5A甲级写字楼 深圳证券交易所【深交所】广深港高铁【福田-香港西九龙】福田站
太平金融大厦 外观图片 5A甲级写字楼 深圳证券交易所【深交所】广深港高铁【福田-香港西九龙】福田站

太平金融大厦 外观图片 5A甲级写字楼 深圳证券交易所【深交所】广深港高铁【福田-香港西九龙】福田站

太平金融大厦 外观图片 5A甲级写字楼 深圳证券交易所【深交所】广深港高铁【福田-香港西九龙】福田站

太平金融大厦
租赁中心电话:400 7165 112
图片实拍
![]() | ![]() | 版权所有: | 深圳市陆壹捌捌玖信息咨询有限公司 | ||
| 联系电话: | 0755-61967921 邮箱:abc@61889vip.com | ||||
| 通讯地址: | 深圳市福田中心区金田路与福华路交汇处金中环商务大厦群楼108C ICP备案号:粤ICP备16012531号 | ||||